Comentarios de clientes
Reseñas de clientes
Avenida de Menéndez Pelayo rara vez aparece disponible.
No lo dejes escapar y haz tu reserva antes de que se agote.
¡Despierta frente al Retiro! Tu hogar temporal en el corazón de Madrid
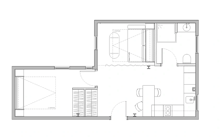
El mobiliario ha sido desarrollado por un equipo de diseñadores interioristas, incorporando un novedoso y cómodo sistema de camas abatibles que ofrece a cada espacio la posibilidad de transformarlo en una zona de descanso (dormitorio tradicional) o en un espacio destinado al estudio y el ocio.
Las 2 habitaciones disponen de cómodas camas de 150 cm. con colchones viscoelásticos de muelles ensacados de máxima calidad, armarios empotrados y están equipadas con televisores de 55”, asegurando el descanso y el entretenimiento en cada rincón.
La cocina está equipada con electrodomésticos de última generación y menaje completo, lista para preparar deliciosas comidas en el horno-microondas y en la airfryer. Además, el amplio baño cuenta con un plato de ducha y mampara, brindando comodidad y funcionalidad. Dispone de calefacción por radiadores, aire acondicionado y ventiladores en todas las estancias; la climatización está garantizada durante todo el año.
Ubicado en una primera planta, este piso se encuentra al lado del Hospital Niño Jesús y justo enfrente al hermoso parque Retiro, un lugar perfecto para pasear y disfrutar de la naturaleza y el deporte. La estación de metro Ibiza se encuentra a solo 50 metros, facilitando el acceso a toda la ciudad. También hay diversas líneas de autobús cercanas ( 20, 26, 63, 152, C1 y C2), lo que hace que moverse sea muy sencillo.
Este alquiler temporal incluye gastos de comunidad, seguro de hogar y mantenimiento anual de las instalaciones. ¡No pierdas la oportunidad de vivir en este maravilloso piso que combina confort y ubicación!
Ubicación inmejorable: A solo 50 metros del metro Ibiza y con múltiples líneas de autobús en la puerta. Tienes Madrid a tus pies y el parque del Retiro como tu jardín privado.
Plano de la vivienda
































































